
DEK Horizon-03iX印刷机
为集成化工厂提供最佳灵活度
由于其模块化和可伸缩的配置选项,DEK Horizon-03iX印刷机可满足任何工艺要求,并为任何产量提供最佳的灵活性。
DEK Horizon-03iX 创新
您提供最好的印刷机,以满足您的所有需求:
DEK Horizon 03 iX:
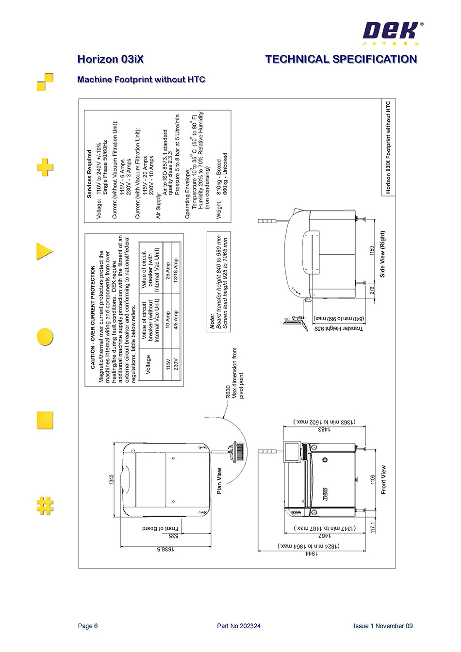
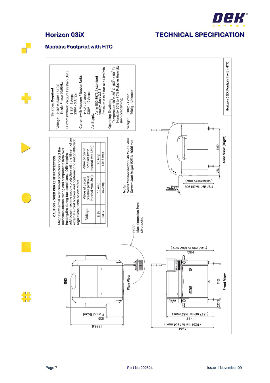
· 机器对位精度:±12.50 µm @ 2.0 Cmk, (±6 Sigma)
· 重复印刷精度: +/- 20μm @2.0 Cmk, (±6Sigma)
· 印刷周期(CCT):8秒
· 完美的印刷解决方案,高产能以及高灵活性
DEK Horizon 选项
DEK提供业界最强大、最灵活的印刷平台。以下可改装的DEK选项可帮助您进一步提高DEK NeoHorizon 印刷机的生产力和质量:
· Full flexible DEK All Purpose Clamping (APC) system
· 完全灵活的DEK多功能组合夹板(APC)系统
· DEK Typhoon Cleaner具有高柔性和最佳清洁性能
· DEK Grid-Lok:通用板支撑系统
· DEK 焊膏管理:自动点胶与焊膏厚度控制的最佳组合
· 使用ProDEK 闭环控制连接 SPI 系统
· DEK多个单基板对位(MASS)提供了一种以非常高的速度进行单独光学对位的解决方案,以提高您的产量






